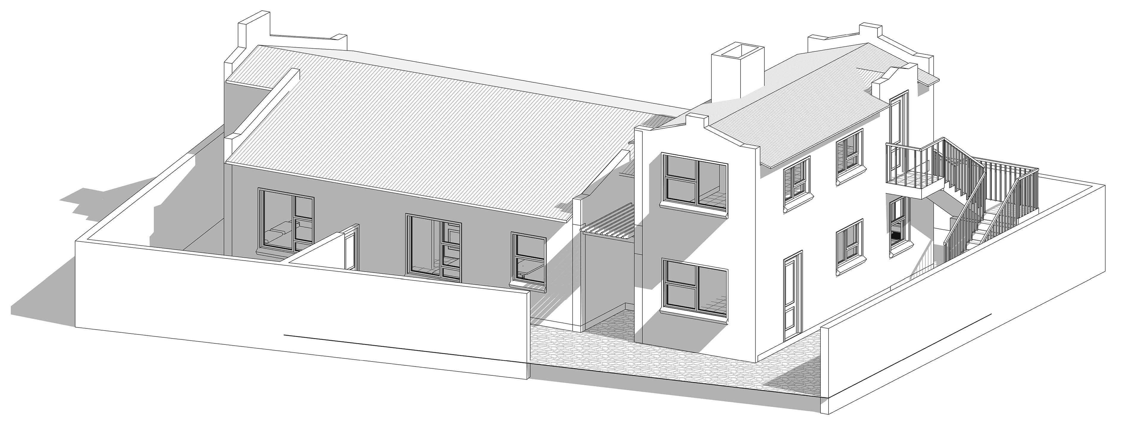
House Brown 1&2
We enjoy designing small, affordable houses and believe that they can provide a lovely lifestyle to users who would not usually live within designed spaces.
Back to Projects