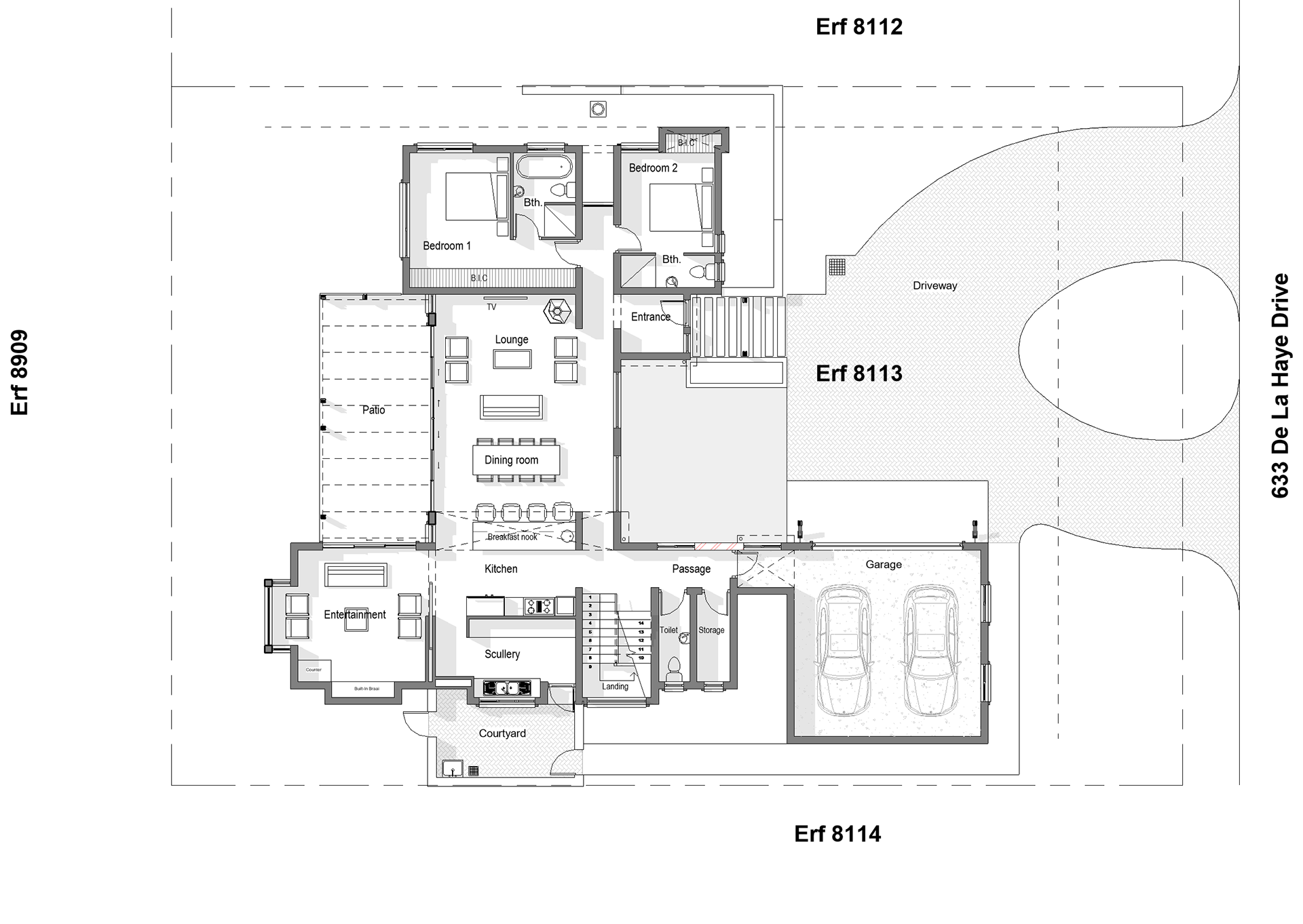
House Zemp
House Zemp is situated next to a driving range. Bay windows were introduced to take full advantage of the views. A loft space was designed due to the site's height restrictions.
Back to Projects