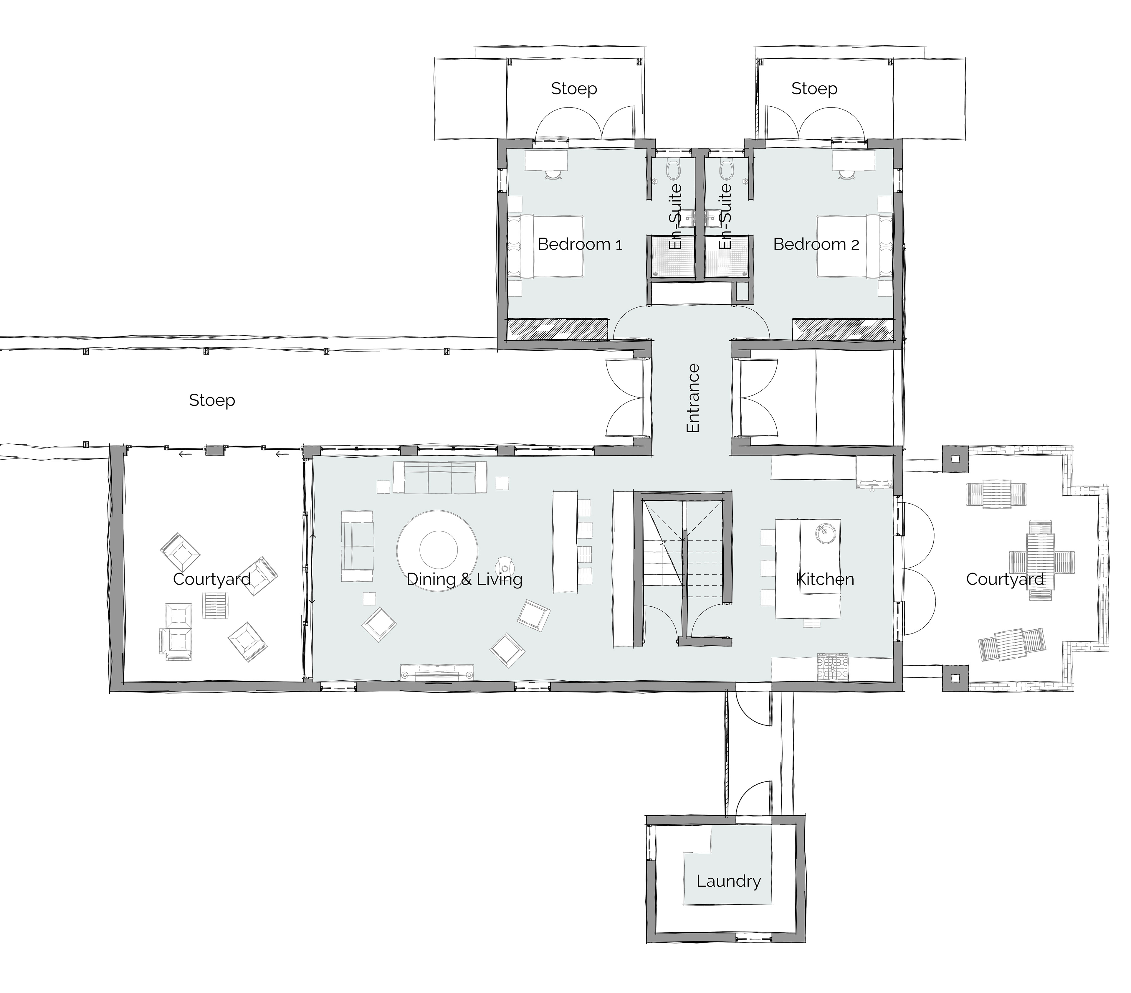
House James
House James is a small house in Hopefield with a modern-industrial and modern-farmhouse aesthetic. The combination of the two ideas resulted in a sophisticated, cost-effective design that provides comfortable and modern living spaces.
Back to Projects