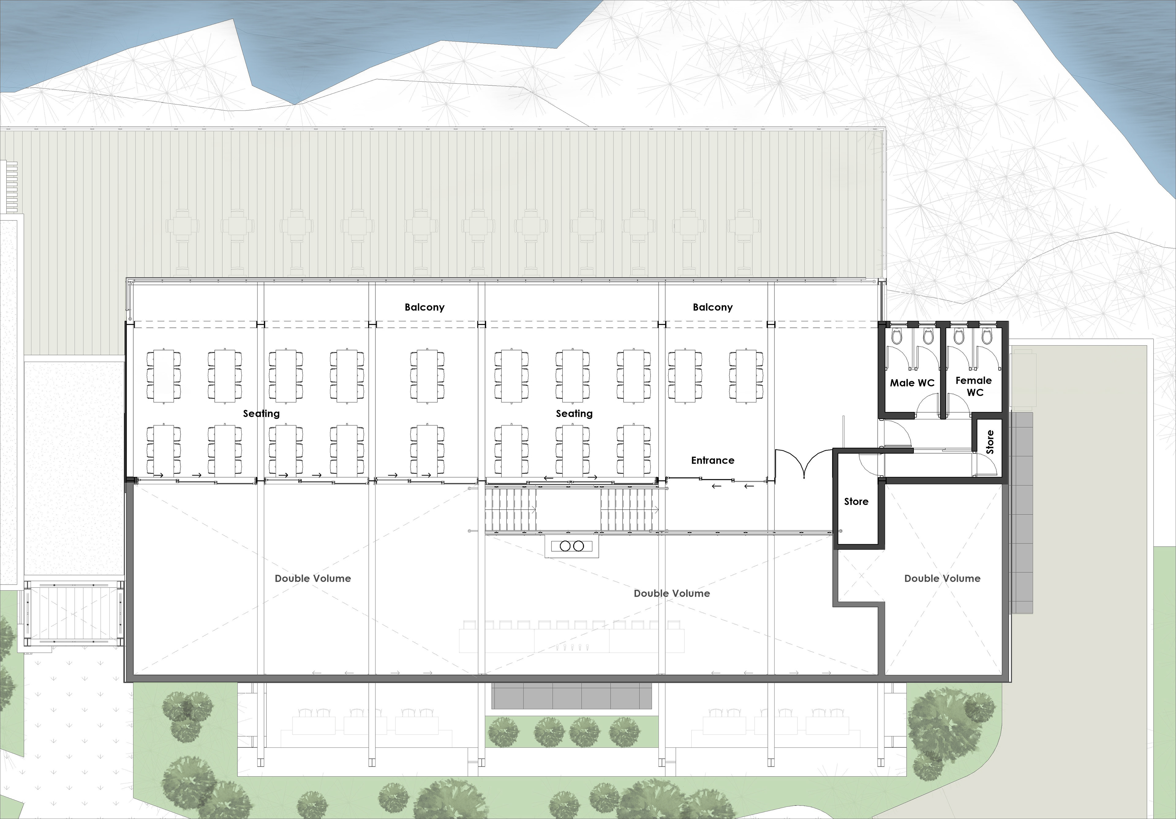
Crabs Creek
An exciting new restaurant, holiday destination and shop development on the water's edge of the Knysna Lagoon. This design is sure to bring a contemporary edge to the beautiful site on which it is located. Set to go ahead in 2020.
Back to Projects