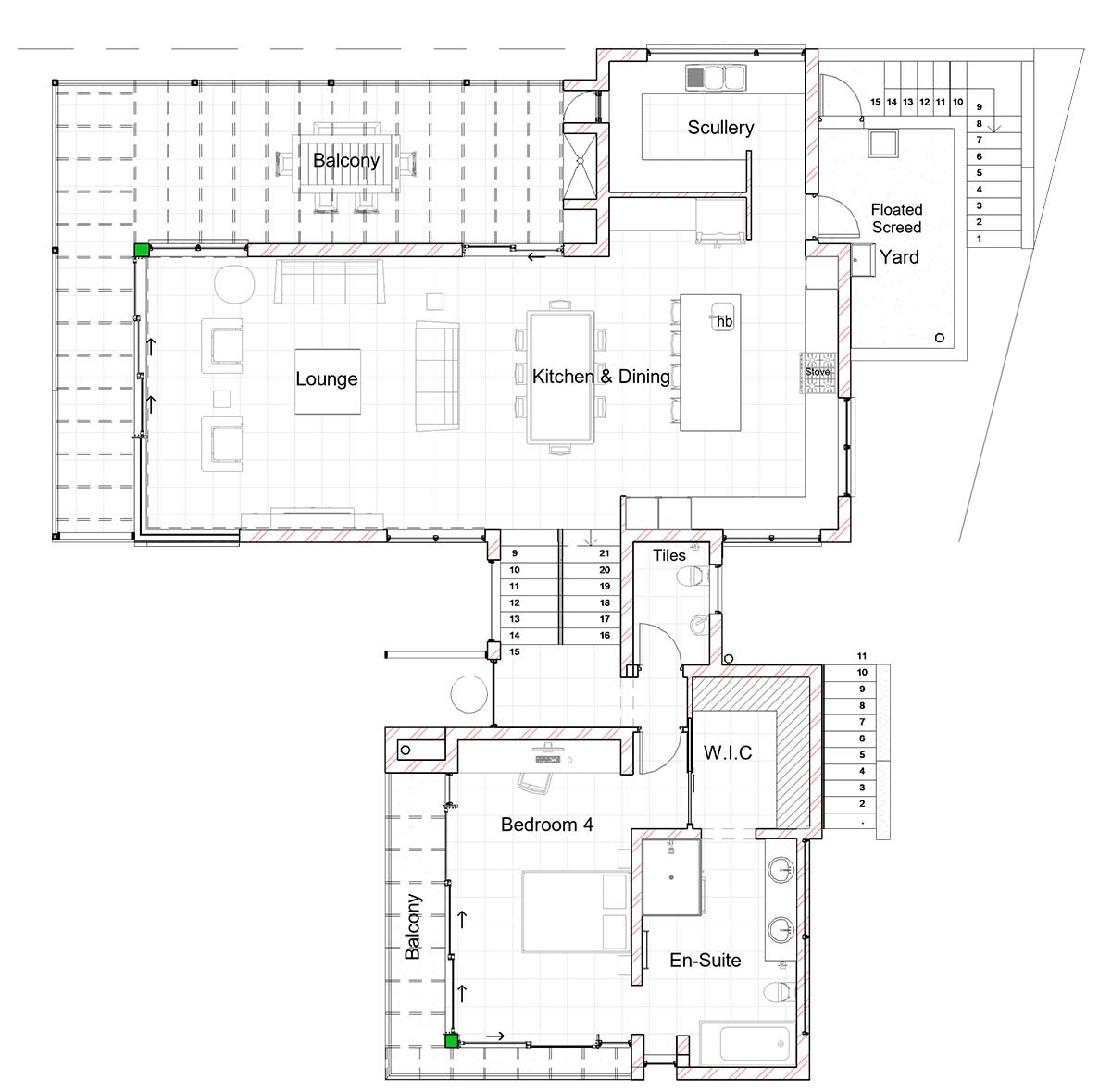
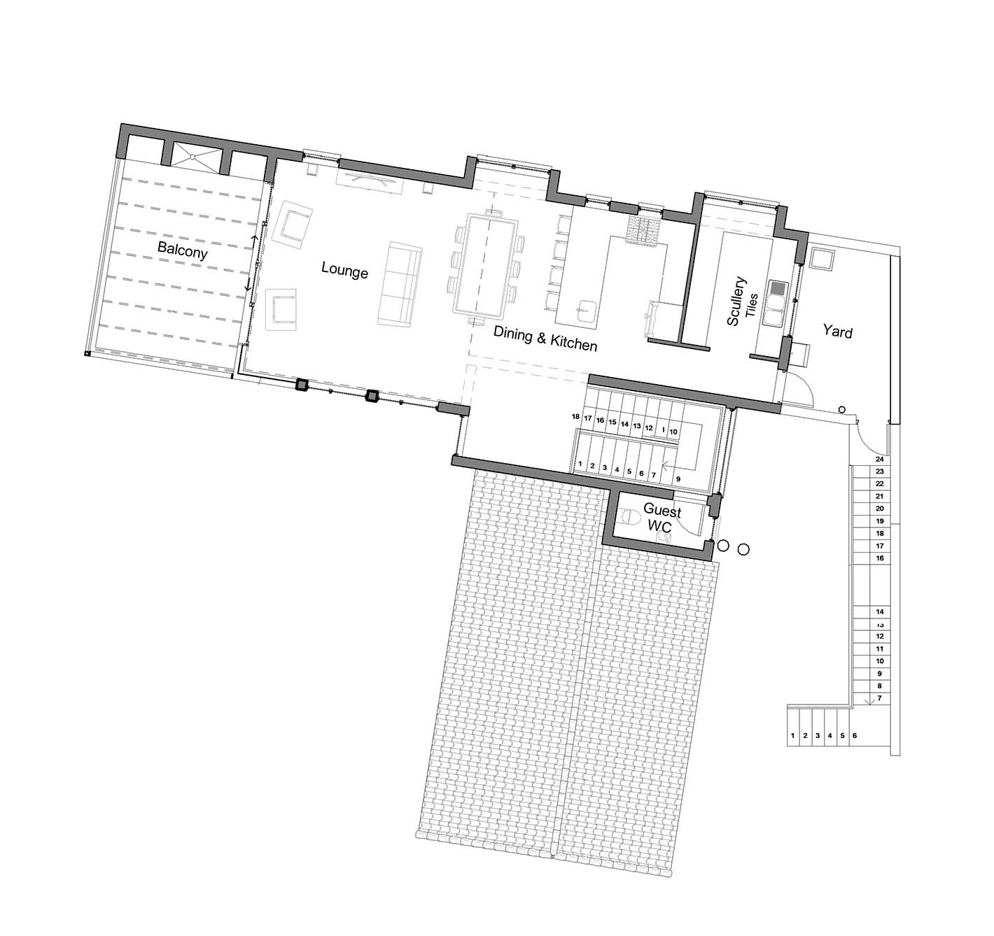
Cedar Park 4 Houses
Designing 4 adjacent houses was both a challenge and a joy. All 4 houses were designed to be entirely unique, each one utilizing it's site to capture ideal views. All of the houses had to speak the same architectural language yet stand out as individual designs.














